> ニュース一覧 > 40.25坪5人家族の家 南道路、南北に長い土地用プラン 階段下をフル活用!玄関収納 、ファミリークローゼット、 トイレの背面にも収納を充実!(株式会社 カノウヤ)- 2020.06.15(月) 15:49
40.25坪5人家族の家 南道路、南北に長い土地用プラン 階段下をフル活用!玄関収納 、ファミリークローゼット、 トイレの背面にも収納を充実!
株式会社 カノウヤ
2020.06.15(月) 15:49
こんにちは。
伊達市上保原にある
家づくりの技術者集団
株式会社カノウヤです。
いつもご覧いただきありがとうございます。
------------------------------------------
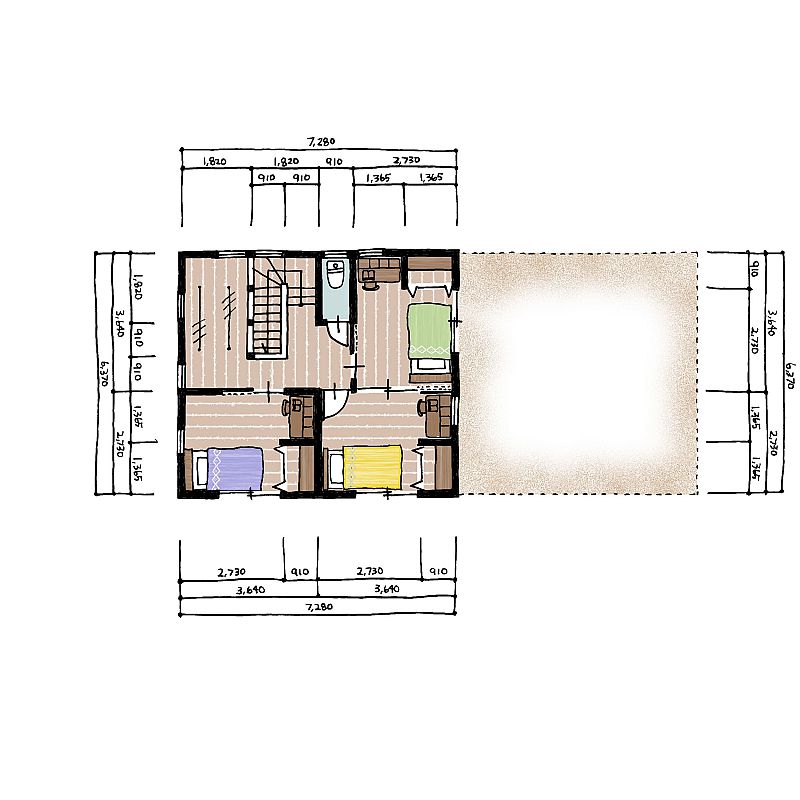
40.25坪5人家族の家
南道路、南北に長い土地です!
階段下をフル活用!玄関収納
お風呂はちょっと広め、
そしてファミリークローゼット、
トイレの背面に収納、
室内物干しスペースも完備してます(^^)
本体価格2286万円(税抜概算)
今までの施工事例や価格詳細、
得する情報は資料請求して頂ければ無料でお届け致します!
資料請求はホームページまたはFAXや電話、メールよりぜひお問い合わせ下さい。
※カノウヤは営業マンがおりません。資料請求をした事でしつこく連絡をするなどはしませんので、お気軽に資料請求して下さいね♪
------------------------------------------
こちらも更新中です♪チェックしてみて下さい♪
↓↓↓
◆インスタグラム
https://www.instagram.com/maman_kanouya_fukushima/
◆フェイスブック
https://www.facebook.com/kanouya1946/
◆カノウヤ公式HP
http://kanouya3.com/index.html 
◆ふくラボ_カノウヤ
http://www.fukulabo.net/shop/shop.shtml?s=4897&e=3122&t=111 
◆ママンホームページ
http://www.maman-net.com 
企業情報 企業データ
株式会社 カノウヤ ( 住宅,リフォーム,太陽光,屋根,壁塗装 )
〒 9600684 福島県伊達市保原町上保原字万所26
TEL : 024-575-2308
ホームページ : http://kanouya3.com/index.html![]()
e-mail:kanouyakanri@gmail.com
企業ニュース 新着3件
株式会社 カノウヤ
企業ニュース 新着3件
株式会社 カノウヤ

36坪5人家族プラン ウォークスルーシューズクローク、玄関手洗い場、物干しスペース、ファミリークローゼット、スタディースペース付
( 株式会社 カノウヤ )
2021.03.02(火) 11:05
住宅 家

36坪4人家族プラン ウォークスルーシューズクローク、洗面脱衣室別、ランドリースペース、ファミリークローゼット、2階ホールカウンター付
( 株式会社 カノウヤ )
2021.03.02(火) 11:01
住宅 家

27.5坪4人家族プラン 洗濯を干したり、散らかりやすい子供のおもちゃなどを仕舞えるのに便利なフリースペース付
( 株式会社 カノウヤ )
2021.03.02(火) 10:56
住宅 家






ふくしまニュースリリースは、福島県内のお店や会社が自らニュースを発信できるホームページです。